Upit
KuhinjaBOXY SET 1 Standard: RAL 9005 /700
KitchenBOXY SET 1 Standard je napredno rješenje s visokokvalitetnim komponentama.
- kućište izrađeno od pocinčanog čelika obloženog prahom u RAL 9005 (crna)
- prednja strana izrađena od pocinčanog čelika obloženog prahom u RAL 9005 (crna)
- gornja ploča izrađena od toplinski i vlagootpornog HPL Compact (visokotlačni laminat) 12 mm s crnom jezgrom Abet Laminati MEG H 700
- cijena uključuje uređaje: Grill Grandhall Maxim G5 (crna), sudoper i slavina Franke (onyx)
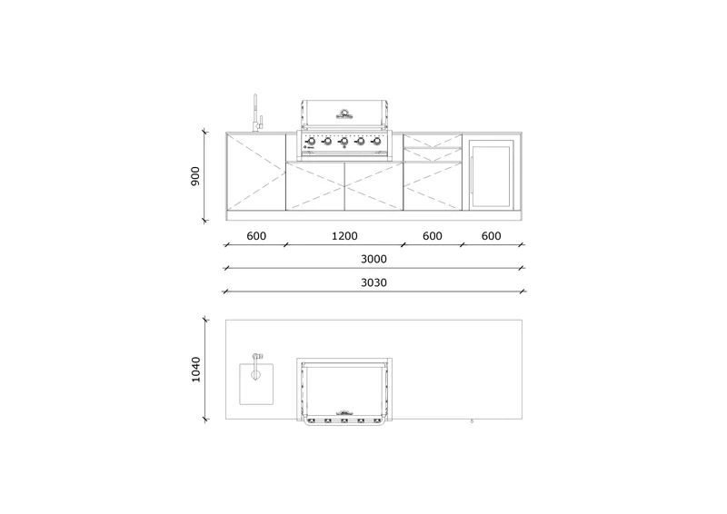
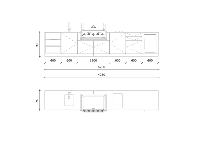
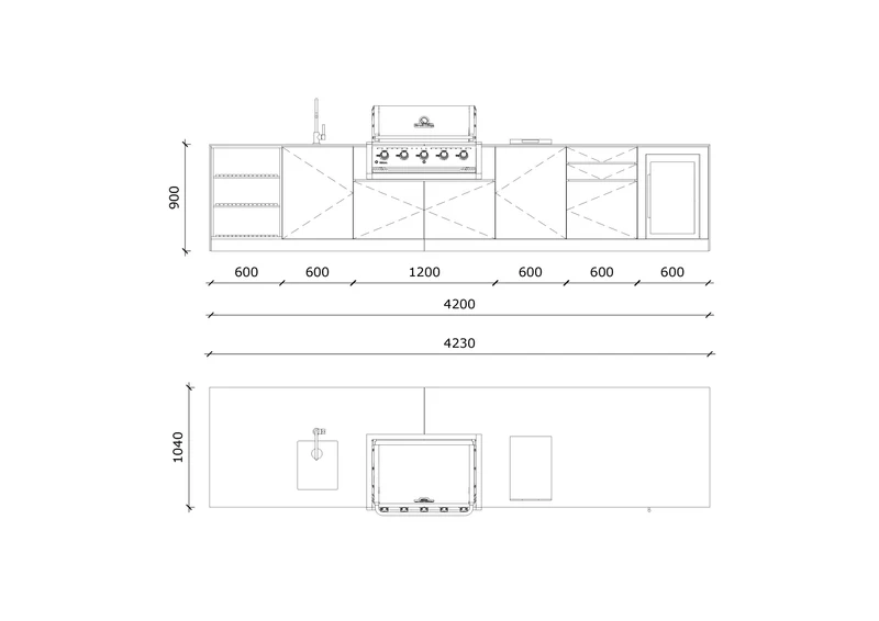
- dimenzije: širina 2425 mm x dubina 772 mm x visina 1255 mm
- dostupno u zidnoj (bez stražnjeg maskiranja) ili otočnoj verziji (sa stražnjim maskiranjem)

























